Назначение
Пластинчатые медно-алюминиевые теплообменники, выпускаемые по техническим условиям ТУ 4663-028-40149153-99, предназначены для нагрева и охлаждения воздуха в системах воздушного отопления, вентиляции и кондиционирования воздуха различных конструкций. Теплообменники предназначены для эксплуатации в районах с умеренным и холодным климатом (УХЛ3 по ГОСТ 15150).
Конструкция и принцип действия
Конструкция и технология изготовления данных теплообменников в основном идентичны. Конструктивные и технологические особенности каждого типа будут оговорены ниже. Теплообменник состоит из одного или более рядов медных трубок с внешним диаметром 12 мм, оребрённых теплообменными элементами в виде гофрированных пластин из алюминиевой фольги толщиной 0,12
0,25 мм. Трубки объединены в группы, концы которых впаяны в коллекторы из стальных или медных труб, через которые осуществляется вход и выход теплоносителя или хладагента. Для соединения с внешней системой на коллекторах имеются специальные патрубки, обеспечивающие сварное, резьбовое или фланцевое соединение. По согласованию с потребителем теплообменники изготавливаются с размерами фронтального сечения от 200×100 (мм) до 3000×2000 (мм). Нагрев или охлаждение воздуха происходит при его прохождении через теплообменник в процессе взаимодействия с медными трубками и алюминиевыми пластинами. По сравнению со стальными калориферами использование медно-алюминиевых элементов повышает эффективность теплопередачи и снижает энергозатраты, но накладывает дополнительные требования к монтажу и эксплуатации этих устройств. Конструкция водяных теплообменников позволяет обеспечить как прямоточную (направление движения воздуха и энергоносителя совпадают), так и противоточную (направление движения воздуха и энергоносителя противоположны) схемы подключения воды. При выборе схемы необходимо учитывать, что работа воздухонагревателя в противоточном режиме позволяет получить прибавку 10% тепловой мощности, а использование прямоточной схемы существенно уменьшает риск замораживания теплообменника. При расчётной температуре воздуха на входе в воздухонагреватель выше минус 15°С целесообразно применять противоточную схему, как обеспечивающую более эффективный теплосъём, а при более низких температурах — прямоточную, как более безопасную. Для воздухоохладителя применяется только противоточная схема, т. к. угроза замораживания отсутствует.
Канальные воздухонагреватели (КВН)
Типоразмеры фронтальных сечений КВН соответствуют сечениям существующих воздуховодов. Присоединительные размеры соответствуют присоединительным размерам элементов канальной вентиляции (канальные вентиляторы, канальные электронагреватели, канальные шумоглушители и т. д.), что позволяет применять их для встраивания в существующие системы вентиляции или для замены импортных канальных воздухонагревателей.
Подгруппы КВН:
-двухрядные теплообменники для прямоугольных воздуховодов с шагом ламелей 2,2 мм — используются для нагрева воздуха в системах вентиляции.
-трехрядные теплообменники для прямоугольных воздуховодов с шагом ламелей 1,8 мм — используются в качестве воздухонагревателей в системах вентиляции, а также как теплообменники для воздушных завес.
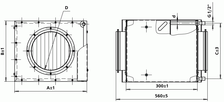
-теплообменники для круглых воздуховодов.
Габаритные и присоединительные размеры теплообменников КВН для круглых воздуховодов

Тип | D, мм | А, мм | В, мм | С, мм | d, мм |
КВН-160 | 160 | 300 | 253 | 225 | 12 |
КВН-200 | 200 | 300 | 253 | 225 | 12 |
КВН-250 | 250 | 385 | 328 | 275 | 12 |
КВН-315 | 315 | 460 | 403 | 350 | 18 |
КВН-400 | 400 | 534 | 479 | 425 | 18 |