СИСТЕМЫ БЫТОВОГО КОНДИЦИОНИРОВАНИЯ И ВЕНТИЛЯЦИИ
СИСТЕМЫ ПРОМЫШЛЕННОГО КОНДИЦИОНИРОВАНИЯ И ВЕНТИЛЯЦИИ
ТЕПЛОТЕХНИКА

Авторизация

КВН 100-50-2

Назначение
Пластинчатые медно-алюминиевые теплообменники, выпускаемые по техническим условиям ТУ 4663-028-40149153-99, предназначены для нагрева и охлаждения воздуха в системах воздушного отопления, вентиляции и кондиционирования воздуха различных конструкций. Теплообменники предназначены для эксплуатации в районах с умеренным и холодным климатом (УХЛ3 по ГОСТ 15150).
Конструкция и принцип действия
Конструкция и технология изготовления данных теплообменников в основном идентичны. Конструктивные и технологические особенности каждого типа будут оговорены ниже. Теплообменник состоит из одного или более рядов медных трубок с внешним диаметром 12 мм, оребрённых теплообменными элементами в виде гофрированных пластин из алюминиевой фольги толщиной 0,12…0,25 мм. Трубки объединены в группы, концы которых впаяны в коллекторы из стальных или медных труб, через которые осуществляется вход и выход теплоносителя или хладагента. Для соединения с внешней системой на коллекторах имеются специальные патрубки, обеспечивающие сварное, резьбовое или фланцевое соединение. По согласованию с потребителем теплообменники изготавливаются с размерами фронтального сечения от 200×100 (мм) до 3000×2000 (мм). Нагрев или охлаждение воздуха происходит при его прохождении через теплообменник в процессе взаимодействия с медными трубками и алюминиевыми пластинами. По сравнению со стальными калориферами использование медно-алюминиевых элементов повышает эффективность теплопередачи и снижает энергозатраты, но накладывает дополнительные требования к монтажу и эксплуатации этих устройств. Конструкция водяных теплообменников позволяет обеспечить как прямоточную (направление движения воздуха и энергоносителя совпадают), так и противоточную (направление движения воздуха и энергоносителя противоположны) схемы подключения воды. При выборе схемы необходимо учитывать, что работа воздухонагревателя в противоточном режиме позволяет получить прибавку 10% тепловой мощности, а использование прямоточной схемы существенно уменьшает риск замораживания теплообменника. При расчётной температуре воздуха на входе в воздухонагреватель выше минус 15°С целесообразно применять противоточную схему, как обеспечивающую более эффективный теплосъём, а при более низких температурах — прямоточную, как более безопасную. Для воздухоохладителя применяется только противоточная схема, т. к. угроза замораживания отсутствует.
Канальные воздухонагреватели (КВН)
Типоразмеры фронтальных сечений КВН соответствуют сечениям существующих воздуховодов. Присоединительные размеры соответствуют присоединительным размерам элементов канальной вентиляции (канальные вентиляторы, канальные электронагреватели, канальные шумоглушители и т. д.), что позволяет применять их для встраивания в существующие системы вентиляции или для замены импортных канальных воздухонагревателей.
Подгруппы КВН:
-двухрядные теплообменники для прямоугольных воздуховодов с шагом ламелей 2,2 мм — используются для нагрева воздуха в системах вентиляции.
-трехрядные теплообменники для прямоугольных воздуховодов с шагом ламелей 1,8 мм — используются в качестве воздухонагревателей в системах вентиляции, а также как теплообменники для воздушных завес.
-теплообменники для круглых воздуховодов.

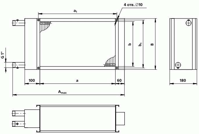
Габаритные и присоединительные размеры теплообменников КВН

КВН

Размеры, мм

а

а1

А

b

b1

В

40-20-2

400

420

640

200

220

240

50-25-2

50-25-3

500

520

740

250

270

290

50-30-2

50-30-3

500

520

740

300

320

340

60-30-2

60-30-3

600

620

840

300

320

340

60-35-2

60-35-3

600

620

840

350

370

390

70-40-2

70-40-3

700

720

940

400

420

440

80-50-2

80-50-3

800

820

1040

500

520

540

90-50-2

90-50-3

900

920

1140

500

520

540

100-50-2

100-50-3

1000

1020

1240

500

520

540

Для просмотра более подробной информации по товару необходимо зарегистрироваться.


Другие товары из рубрики «Теплообменное оборудование»

Корзина заказа

Товаров: 0 шт.
Оформить заказ
Текущий курс USD = 20 100 бел. руб.
Copyright ООО ВентРемТорг, 2007-2019 Тел.:+375 (17) 325-09-79
Тел./факс: +375 (17) 323-93-09
Наш E-mail:    info@vrs.by