|
|
СИСТЕМЫ БЫТОВОГО КОНДИЦИОНИРОВАНИЯ И ВЕНТИЛЯЦИИ
|
|
|
СИСТЕМЫ ПРОМЫШЛЕННОГО КОНДИЦИОНИРОВАНИЯ И ВЕНТИЛЯЦИИ
|
|
|
|
|
  |
|
|
|
 |

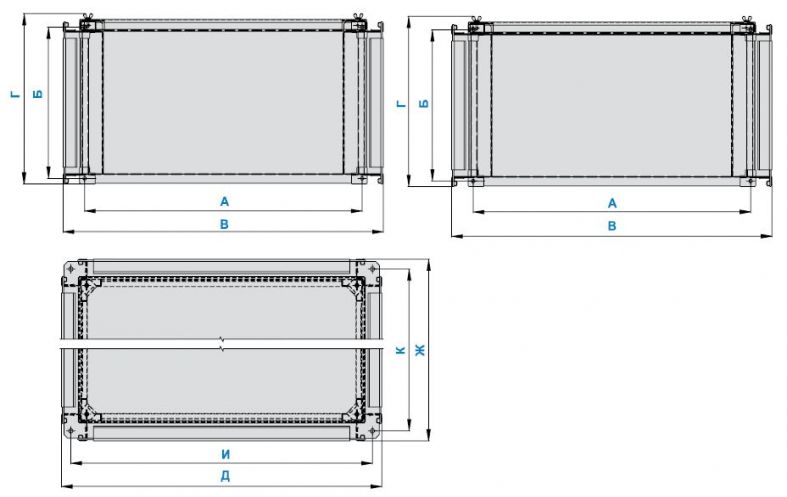
Назначение: Пластинчатые рекуператоры REC являются теплообменными аппаратами и предназначены для утилизации тепла (холода) в системах вентиляции и кондиционирования воздуха общественных и жилых зданиях. Монтаж рекуператоров Монтаж рекуператоров осуществляется путем крепления фланцев рекуператоров к ответным фланцам воздуховодов (переходов) при помощи болтов и скоб. Для предохранения пластин рекуператора от засорения целесообразно перед ним устанавливать фильтр. Прямоточное подключение обеспечивает большую устойчивость к замерзанию, но дает меньшую эффективность теплообмена. Противоточное подключение обеспечивает максимальную эффективность теплообмена. Рекуператоры должны быть оборудованы отводами для слива конденсата или конструкция рекуператоров должна предусматривать возможность периодического слива конденсата, который может образовываться на пластинах. В комплект пластинчатых рекуператоров REC стандартно входит штуцер с крепежной шайбой, который устанавливается в зависимости от положения рекуператора в системе на съемную панель или несъемную стенку. Конструкция съемной панели и стенки рекуператора представляет собой своеобразный поддон, в котором скапливается конденсат. Штуцер устанавливается так, чтобы был возможен слив конденсата. ГАБАРИТНЫЕ И ПРИСОЕДИНИТЕЛЬНЫЕ РАЗМЕРЫ РЕКУПЕРАТОРОВ Обозначение | А | Б | В | Г | Д | И | Масса, кг | REC 40-20 | 420 | 220 | 516 | 260 | 516 | 474 | 25,6 | REC 50-25 | 520 | 270 | 616 | 360 | 616 | 574 | 35,6 | REC 50-30 | 520 | 270 | 616 | 360 | 616 | 574 | 35,6 | REC 60-30 | 620 | 320 | 716 | 360 | 716 | 674 | 46,6 | REC 60-35 | 620 | 370 | 716 | 410 | 716 | 674 | 48,6 | REC 70-40 | 720 | 420 | 816 | 460 | 816 | 774 | 64,6 | REC 80-50 | 820 | 520 | 916 | 560 | 916 | 874 | 85,6 | REC 90-50 | 930 | 530 | 1016 | 560 | 1016 | 974 | 92 | REC 100-50 | 1030 | 530 | 1116 | 560 | 1116 | 1074 | 105,6 |
АЭРОДИНАМИЧЕСКИЕ ХАРАКТЕРИСТИКИ РЕКУПЕРАТОРОВ
Другие товары из рубрики «Рекуператоры REC»
|
|
Текущий курс USD = 20 100 бел. руб.
|
|