СИСТЕМЫ БЫТОВОГО КОНДИЦИОНИРОВАНИЯ И ВЕНТИЛЯЦИИ
СИСТЕМЫ ПРОМЫШЛЕННОГО КОНДИЦИОНИРОВАНИЯ И ВЕНТИЛЯЦИИ
ТЕПЛОТЕХНИКА

Авторизация

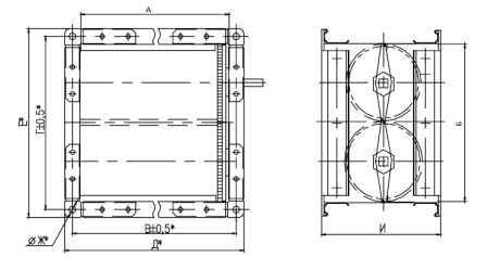
СНК 50-30

Заслонки отсекающие и регулирующие предназначены для регулирования потока воздуха, идущего по каналу воздуховода. Рабочее положение — любое, рабочая температура окружающей среды от — 40 до +70С. Перемещаемый воздух или другие невзрывоопасные газовые смеси не должны содержать клеящихся, волокнистых, абразивных или агрессивных примесей. В стандартном исполнении корпус и фланцы заслонки изготовлены из оцинкованного стального листа (по желанию возможно изготовление заслонки из нержавеющего стального листа). Поворотные пластины заслонки — из алюминиевого профиля. Поворот пластин заслонки осуществляется при помощи шестеренчатого привода. Герметичность заслонки достигается за счет резинового уплотнителя, который установлен на каждой поворотной плаастине.
 
 
 
                               
                                                                                                             
 
          Для управления заслонками применяються сервопривады фирмы SIEMENS (2-x,3-x позиционные, аналоговые; с возвратной пружиной и без, питанием 24В и 230В).
 
 
 
 
 

Для просмотра более подробной информации по товару необходимо зарегистрироваться.


Другие товары из рубрики «Заслонки регулирующие NED CHR»

Корзина заказа

Товаров: 0 шт.
Оформить заказ
Текущий курс USD = 20 100 бел. руб.
Copyright ООО ВентРемТорг, 2007-2019 Тел.:+375 (17) 325-09-79
Тел./факс: +375 (17) 323-93-09
Наш E-mail:    info@vrs.by